1195 Old Wildlife Club Drive #89
$1,150,000
1 bd 2 ba 1,119 sqft
1195 Old Wildlife Club Drive #89
Nebo, NC 28761
28 days on market
Property Type
Residential
Year Built
2017
Lot Size
Garage
2 spaces

About This Property

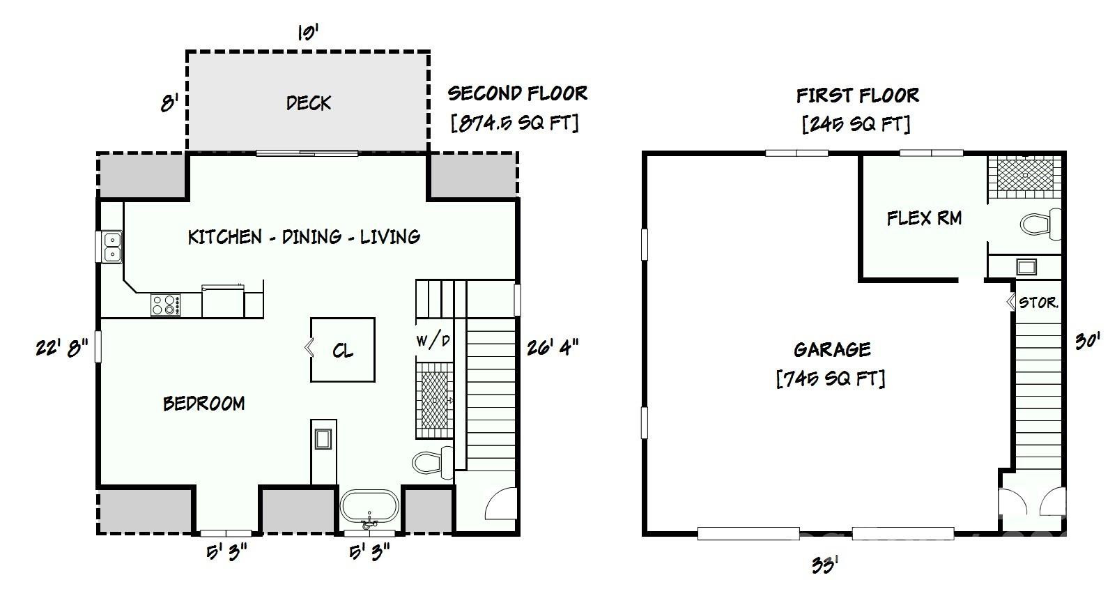
Perched on a stunning 2+ acre homesite within prestigious Old Wildlife Club, 1195 Old Wildlife Club Drive offers one of the most breathtaking vantage points on Lake James. This rare property captures expansive long-range water views paired with the Blue Ridge Mountains, a combination seldom found on Lake James and one that creates a truly unforgettable setting. An easy-to-access, year round boatslip just a short UTV ride away is included! The thoughtfully designed “Garagemahal” provides comfortable living today while leaving plenty of room to build a future dream home on the spacious parcel. The massive two-bay garage is ideal for lake living, with one extra-long bay designed to accommodate a boat, lake toys, or workshop space.Above the garage, the main living area features vaulted ceilings and a dramatic wall of windows that perfectly frame the sweeping lake and mountain views. The open living space flows easily into an ample kitchen with built-in features and granite countertops throughout, making full use of the space for everyday living or entertaining. The primary suite offers a peaceful retreat with a spacious bathroom and stand-alone soaking tub, while additional flexible living space on the garage level includes a full bathroom and room that could serve as a guest area, office, or recreation space. A washer and dryer, generous storage, low-maintenance Hardy siding, and a stone foundation add to the home's practicality and durability. Outdoor living truly shines here. A large Trex deck stretches across the home, showcasing the panoramic views, while a covered patio below and firepit area overlooking the sparkling waters of Lake James provide incredible spaces to relax and entertain. Ownership also includes access to Camp Lake James, offering a lakefront pool, fitness center, tennis and pickleball courts, dining, social events, and marina access. The owners are even willing to share their previous custom home design plans, making this an exceptional opportunity to enjoy the property now while planning your ultimate Lake James retreat.

Property Details

Interior

Bedrooms
1
Bathrooms
2
Living Area
1,119 sqft

Exterior & Lot

Year Built
2017
Garage Spaces
2

Location

Subdivision
Old Wildlife Club
County
McDowell
ZIP Code
28761

Financial

Listing Terms
Cash, Conventional
HOA Fee
$2,200/mo

Utilities

Utilities
Electricity Connected, Fiber Optics, Underground Power Lines, Underground Utilities, Wired Internet Available
Sewer
Septic Installed

Schools

Elementary
Unspecified
Middle School
Unspecified
High School
Unspecified

Interior Features

Breakfast Bar, Built-in Features, Garden Tub, Kitchen Island, Open Floorplan, Storage, Walk-In Closet(s)

Appliances

Dishwasher, Disposal, Dryer, Electric Cooktop, Electric Oven, Electric Range, Electric Water Heater, Microwave, Plumbed For Ice Maker, Refrigerator with Ice Maker, Washer/Dryer

Patio & Porch Features

Awning(s), Balcony, Deck, Patio

Lot Features

Private, Wooded, Views

Location

Listing Information

MLS #
CAR4354747
Listing Agent
Fletcher Edens
Listing Office
Keller Williams Unified
Listed Date
Mar 15, 2026
Scott Beattie
Scott Beattie
Realtor®, Broker Associate

Contact Scott Beattie About This Property

Interested in 1195 Old Wildlife Club Drive #89? Send us a message and we'll get back to you.

Your information will be kept confidential and used only to respond to your inquiry.