+20 more
/ 25
+15
$725,000
3 bd
3 ba
2,940 sqft
1012 Sols Creek Church Road
Tuckasegee, NC 28783
Active
Property Type
Residential
Year Built
2025
Lot Size
—
Garage
—
About This Property
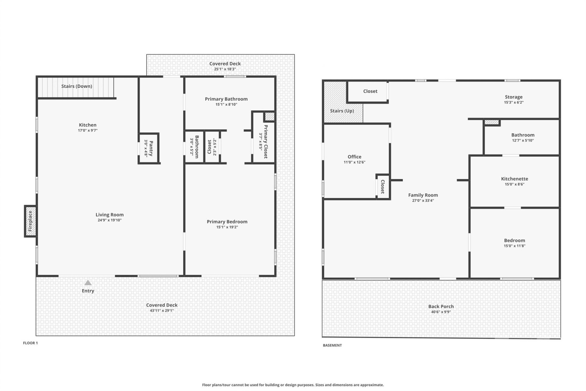
Seven acres of unrestricted Western North Carolina land, a brand new 2,940 square foot home built to a high standard, and views that remind you why people move to these mountains in the first place.
The main level is open and well thought out, with LVP flooring throughout and a kitchen clearly designed for people who actually cook. Custom cabinetry, granite countertops, an oversized island, and a gas range make it a space you'll want to spend time in. The primary suite is on the main level, tucked away with a custom tile shower and its own private door out to the covered deck. A tankless water heater, propane fireplace, and multi-zone heating and cooling keep things comfortable in every season without a second thought.
The lower level is where this property gets interesting for families or buyers considering multi-generational living. A full second kitchen, two bedrooms, a spacious den, and walkout access to the outdoors make it a completely functional living space on its own. In-laws or your favorite guests, the flexibility is there.
Outside, the acreage opens up everything. The views from the porch are the kind you stop and look at every single morning. The land is unrestricted, usable, and genuinely suited for someone who wants horses, a small farm operation, a workshop, or simply room to breathe. A metal roof ties it all together and means low maintenance for years to come.
If you've been looking for a modern home that's connected to family and outdoors, this is worth a serious look.
The main level is open and well thought out, with LVP flooring throughout and a kitchen clearly designed for people who actually cook. Custom cabinetry, granite countertops, an oversized island, and a gas range make it a space you'll want to spend time in. The primary suite is on the main level, tucked away with a custom tile shower and its own private door out to the covered deck. A tankless water heater, propane fireplace, and multi-zone heating and cooling keep things comfortable in every season without a second thought.
The lower level is where this property gets interesting for families or buyers considering multi-generational living. A full second kitchen, two bedrooms, a spacious den, and walkout access to the outdoors make it a completely functional living space on its own. In-laws or your favorite guests, the flexibility is there.
Outside, the acreage opens up everything. The views from the porch are the kind you stop and look at every single morning. The land is unrestricted, usable, and genuinely suited for someone who wants horses, a small farm operation, a workshop, or simply room to breathe. A metal roof ties it all together and means low maintenance for years to come.
If you've been looking for a modern home that's connected to family and outdoors, this is worth a serious look.
Property Details
Interior
- Bedrooms
- 3
- Bathrooms
- 3
- Living Area
- 2,940 sqft
Exterior & Lot
- Year Built
- 2025
Location
- Subdivision
- Tuckaseegee
- County
- Jackson
- ZIP Code
- 28783
Financial
Utilities
- Utilities
- Propane, Satellite Internet Available
- Sewer
- Septic Installed
Schools
- Elementary
- Unspecified
- Middle School
- Unspecified
- High School
- Unspecified
Interior Features
Garden Tub, Kitchen Island, Open Floorplan, Pantry, Walk-In Closet(s)
Appliances
Dishwasher, Exhaust Fan, Exhaust Hood, Gas Cooktop, Gas Oven, Gas Range, Microwave, Tankless Water Heater
Patio & Porch Features
Covered, Deck, Rear Porch
Lot Features
Cleared, Hilly, Views
Location
Listing Information
- MLS #
- CAR4370121
- Listing Agent
- Jonathan Tharp
- Listing Office
- Keller Williams Great Smokies
- Listed Date
- Apr 17, 2026
Contact Brian Deacon About This Property
Interested in 1012 Sols Creek Church Road? Send us a message and we'll get back to you.